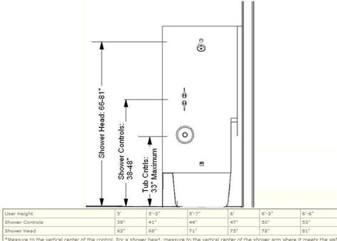
Tammy Phillips Blog